Mieux-etre
Conçue comme un lieu de transition, de répit et de soin, la Maison Mieux-Être s’inscrit dans une vision où l’architecture accompagne le processus de guérison avec douceur, clarté et bienveillance. Si la guérison est la destination, alors le parcours pour y parvenir mérite une attention tout aussi délicate.

Implantée au creux d’une cuvette naturelle, bordée par un chemin de promenade, la MME fait du relief un allié. Plutôt que de dominer, elle choisit de s’ancrer dans le paysage, à l’abri des vents et des regards, offrant un environnement protégé, apaisé, presque confidentiel. Cette position basse n’est pas un repli, mais une posture humble et juste : celle de l’accueil et du soin.

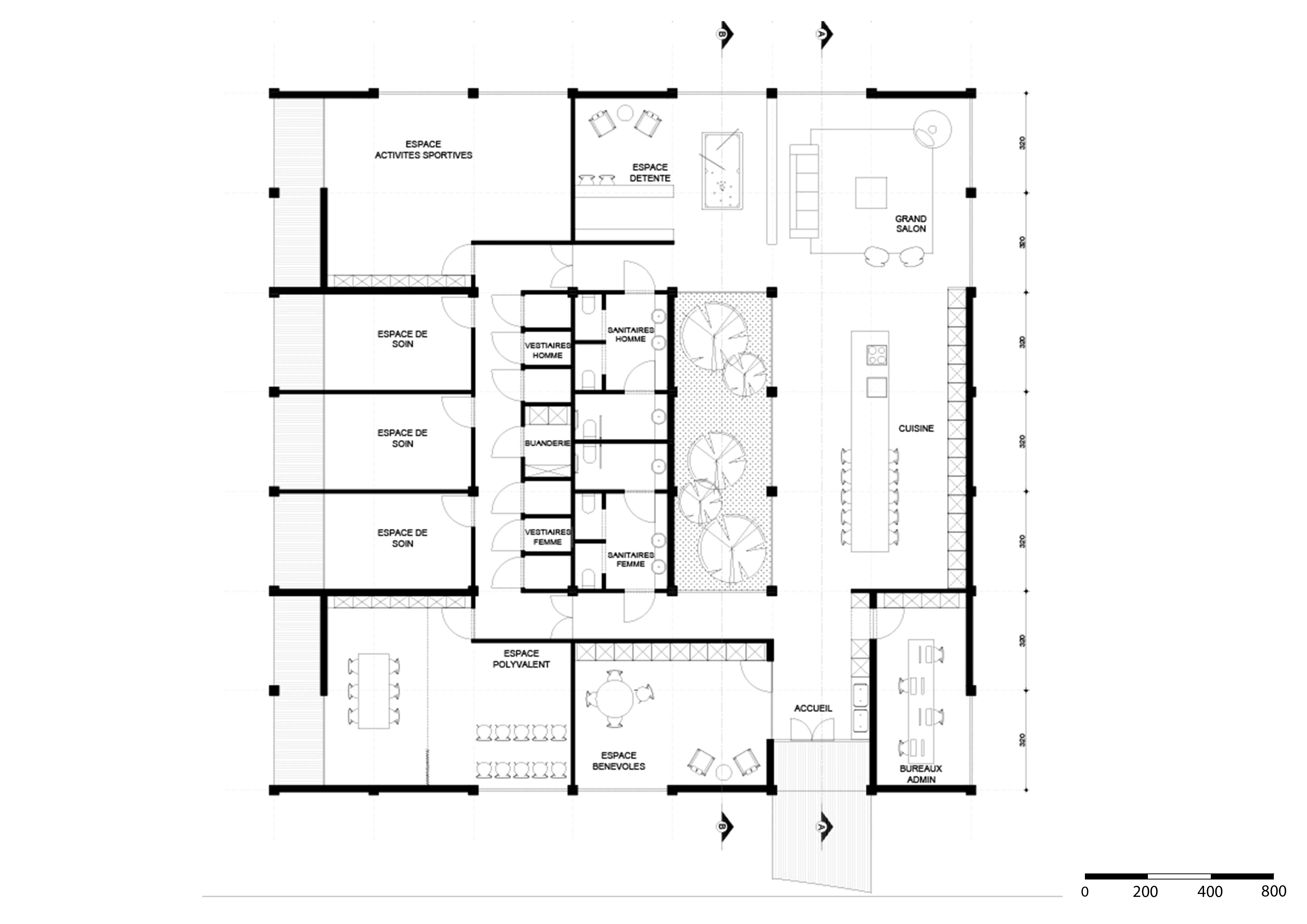
L’organisation spatiale, centrée autour d’un patio, repose sur une lecture fluide et intuitive du lieu. Chaque espace se déploie autour de ce cœur végétal, permettant une circulation sans rupture, sans marche arrière ni détour. Le patient – ou "voyageur" – peut ainsi quitter l’espace après son soin dans une discrétion respectueuse, sans croiser à nouveau les lieux d’attente ou les zones communes. Avec sa forme simple, son implantation sensible et son usage réfléchi, la MME propose une architecture du mieux-être, à la fois protectrice et ouverte, attentive aux corps comme aux esprits.